4 lakásos társasház - F01

4 lakásos társasház - F01

4 lakásos társasház - F01

Hegyeshalom – 4 lakásos társasház!!!
Hiv szám: 1052-F01

Tervezett átadás: 2019. 12. 31.

Ár: 32.343.575.- /emelt szintű fűtés kész állapotban

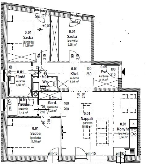
Alapterület: 81.92nm + 9nm terasz + 102.19 kert

Beosztás: előszoba(3.15nm), fürdő(4.5nm), gardrób(3.23nm), konyha(8.64nm), közl.(6.96nm), nappali(18.38nm), szoba1(9.58nm), szoba2(11.36nm), szoba3(11.40nm), tusoló(3.14nm), wc(1.58nm)


Rövid tájékoztató a műszaki tartalomból a teljesség igénye nélkül:

Falak: vakolt

Aljzat: simított betonburkolat

Nyílászárók: ablakok 3 rtg üvegezésű, műanyag fehér színben. Bejárati ajtó fehér színben (vagy fém kivitelben, előírásnak megfelelően)

Fűtés: kondenzációs gázkazán

Hőleadás: lapradiátorok v. padlófűtés

Villany: 32 amper

Közművek: egyedi, lakásonkénti mérőórák

Terasz: térkővel kirakva

Gépkocsi parkoló: az ár tartalmaz 1 db beállót / igény esetén +parkoló 500.000.-/ db-áron vásárolható

                                 - gyephézagos térburkoló elemmel

Kulcsrakész kivitelezésre, kérje ajánlatunkat!!!!

Az ingatlan pontos tervrajzaival, műszaki leírásával, az igényelhető állami támogatások, illetve hitellehetőségekkel kapcsolatban állunk rendelkezésére irodánkban, előre egyeztetett időpontban!

Klauser Róbert

Telefon: +36 30 377 53 18